Beschrijving

In het buitengebied gelegen vrijstaand woonhuis met twee schuren op een perc.opp. van ca. 1.00.00 ha, met bestemming WONEN

Indeling

In het buitengebied gelegen vrijstaand woonhuis met twee schuren op een perc.opp. van circa 1.00.00 ha, met bestemming WONEN!

Eerste verdieping

Het object is bereikbaar via een lange gedeelde oprijlaan. Het woonhuis staat prachtig ver vanaf de weg met een groot eigen weiland als voortuin met volop ruimte om een mooie tuin en verdere oprijlaan aan te leggen. Het object omvat een vrijstaand woonhuis met twee schuren en verdere aanhorigheden, ondergrond, erf, tuin en weiland op een perceeloppervlakte van circa 1.00.00 ha (ofwel 10.000 m2).

OPMERKINGEN VOORAF:
•	Koper zal zelf een oprijlaan aan moeten leggen vanaf de gedeelde oprijlaan over het weiland voor het huis door;
•	Het woonhuis heeft achterstallig onderhoud;
•	In de schuur ten westen van het woonhuis is een metaalbewerkingsbedrijfje gevestigd (enkel de eigenaar zonder personeel);
•	Aan de oostkant grenst het perceel aan een vleeskuikenbedrijf. Het emissiepunt van de luchtwasser zit zover mogelijk van het woonhuis;
•	Er is een bodemonderzoek gedaan en dit is op te vragen per email evenals het asbestinventarisatie verslag. Ook is er een offerte van sanering en sloop beschikbaar;
•	Het object wordt verkocht “as is, where is” dus in de staat zoals die is tijdens de bezichtiging;
•	De erfgrens met de westelijke buurman in de schuur ligt op erg korte afstand vanaf het woonhuis;
•	Het met betonklinkers verharde toegangspad tussen het woonhuis en de schuur met daarin het metaalbedrijfje van buurman zit niet in de koop en zal na aankoop niet bruikbaar zijn voor de nieuwe eigenaar. Koper zal zelf over eigen terrein een nieuw toegangspad moeten maken vanaf de gezamenlijke oprijlaan;
•	Het verkochte wordt afgeleverd vrij van huur, pacht en/of gebruiksrechten van derden afgezien van het recht van overpad van buurman om de openbare weg te bereiken;
•	Het woonhuis is niet aangewezen als beschermd dorpsgezicht of gemeentelijk monument.

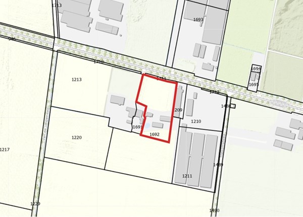
KADASTRALE GEGEVENS:
Gemeente HILVARENBEEK, sectie Q, nummer 1692 ged., ter grootte van circa 01.00.00 ha
Aantekening kadaster:
Het perceel te Hilvarenbeek, sectie Q, nummer 1692 is belast met een zakelijk recht als bedoeld in artikel 5, lid 3, onder B, van de Belemmeringenwet Privaatrecht op gedeelte van perceel ten behoeve van Brabant Water N.V., te ’s-Hertogenbosch en Waterschap De Dommel te Boxtel. Het betreft een rioolleiding en waterleiding in de berm van de sloot parallel aan de openbare weg.
Het perceel is belast met een erfdienstbaarheid, afkomstig uit stuk Hyp4 84576/33, ingeschreven op 05 juli 2022. Dit houdt in dat de eigenaar van het metaalbedrijf het recht op uitweg heeft over de gedeelde oprijlaan.
(Bron: Kadaster).

BESTEMMING:
Het object is gelegen in het bestemmingsplan “Buitengebied”, van de gemeente Hilvarenbeek, vastgesteld door de raad van deze gemeente op 13 maart 2014, in werking getreden en onherroepelijk geworden. 
Krachtens dit bestemmingsplan is de onroerende zaak bestemd als:
Enkelbestemming: Wonen
Enkelbestemming: Agrarisch
Dubbelbestemming: Waarde – Archeologie 2
Met de bestemming “wonen” is dit object goed te financieren bij diverse geldverstrekkers!
(Bron: Ruimtelijke Plannen). 
Oppervlakte bestemming “wonen” binnen het verkochte is circa 3.000 m².
Voor het vigerende bestemmingsplan wordt verwezen naar de bijlage.

NUTSVOORZIENINGEN:
Drinkwaterleiding; elektriciteitsnet; aardgas; drukriolering; telefoon; glasvezelinternet;

MILIEUZAKEN EN BOUWVERGUNNINGEN:
Er is geen milieuvergunning aanwezig. Zodoende is het enkel toegestaan om hobbymatig vee te houden. Zie verder onze uitgebreide verkoopbrochure. 
Voor zover bij verkoper bekend zijn alle opstallen gebouwd met bouwvergunning.

OMSCHRIJVING:
Woonhuis:
•	oorspronkelijk bjr 1910. Het woonhuis is aan beide zijden uitgebouwd met extra woonruimtes. In 1998 is het woonhuis voorzien van een nieuw geïsoleerd dak en de eerste verdieping is gerenoveerd met daarbij een compleet nieuwe badkamer. Ook is toen op de begane grond een uitbouw gerealiseerd met daarin een keuken, toilet en bijkeuken. Aan de andere zijde van het woonhuis was eerder al woonruimte aangebouwd bestaande uit twee kamers met eigen badkamer en toilet;
•	de inhoud bedraagt ca 715 m³ en de woonopp. is ca 140 m2;
•	het oorspronkelijke deel van het woonhuis heeft steense muren welke zijn opgetrokken uit bakstenen. Deze zijn aan de binnenzijde plaatselijk voorzien van asbest platen tegen doorslag. De later aangebouwde ruimtes zijn voorzien van spouwmuren. De begane grondvloer is van beton. De verdiepingsvloer is van hout. De kapconstructie bestaat uit spanten van hout en gordingen van hout, deels op door gemetselde muren. Het oorspronkelijke zadeldak is voorzien van dakplaten en gedekt met gebakken dakpannen. De later aangebouwde delen zijn voorzien van platte daken (dakleer);
•	nagenoeg alle kozijnen zijn van hardhout met dubbel glas. Het woonhuis wordt verwarmd met centrale verwarming via radiatoren;
Indeling:
Entree via de achterzijde naar de keuken die gelegen is in de aanbouw. De keuken beschikt over een 4 pits fornuis, een oven, magnetron, vaatwasser en gootsteen. Doorgang met toilet. Vanuit de keuken is de eetkamer te bereiken. Via de eetkamer heeft men toegang tot de hal naar de voordeur, de trapopgang en een slaapkamer op de begane grond.
Via de hal heeft men toegang tot de woonkamer. De woonkamer geeft toegang tot de andere aanbouw waarin twee kamers en ook een badkamertje zijn gesitueerd;
Indeling eerste verdieping: 
Op de eerste verdieping zijn drie nette slaapkamers en een grote badkamer gemaakt. De badkamer beschikt over een douchecabine, dubbele wastafel, ligbad, toilet en mechanische ventilatie;
Algemeen: het betreft een groot woonhuis met karakteristieke kenmerken. Er is sprake van achterstallig onderhoud echter daarmee biedt het een unieke kans om er zelf een mooi paleis van te maken.

Schuur I:
•	bjr 1910.
•	afm ca 27 m x 9,5 m = opp. ca 256 m².
•	de wanden zijn opgetrokken uit bakstenen, vloer van beton, kapconstructie van houten vakwerkspanten;
•	het plafond is beschoten met asbest platen en het dak is gedekt met asbest cement golfplaten;
•	onder de vloer kunnen mestkelders aanwezig zijn welke mogelijk zijn overgestort met beton op asbest cement golfplaten;
Door ten tijde van het vervangen van het dak spanten te plaatsen met een hogere goot en nok, zou men een mooie bruikbare ruimte kunnen realiseren.

Schuur II:
•	bjr 1969.
•	afm 23 m x 9,5 m = opp. ca 218 m².
•	de wanden zijn opgetrokken uit bakstenen, vloer van beton, kapconstructie van houten vakwerkspanten;
•	het plafond is beschoten met asbest platen en het dak is gedekt met asbest cement golfplaten;
•	onder de vloer kunnen mestkelders aanwezig zijn welke mogelijk zijn overgestort met beton op asbest cement golfplaten;
Door ten tijde van het vervangen van het dak spanten te plaatsen met een hogere goot en nok, zou men een mooie bruikbare ruimte kunnen realiseren.

Let op: de bestaande bebouwing biedt de kans om meer bijgebouwen te hebben dan normaliter bij de bestemming wonen wordt toegestaan. Het advies is om deze te renoveren want na sloop zal men slechts een deel van de bestaande meters mogen terugbouwen, een en ander zoals omschreven in de regels van het vigerende bestemmingsplan. Volgens artikel 16.2.4 letter a mag slechts 100 m² vrijstaande bijgebouwen worden gerealiseerd na sloop van de bestaande schuren met als extra 25% van de overige gesloopte vierkante meters (zie artikel 16.3.1 Sloopbonusregeling).
Nb. bij een van de schuren staat een stapel stenen. Deze zitten in de koop en worden dus niet opgeruimd door verkoper.
 
OVERIGE:
Erfverharding, regenput en vijver:
•	het erf is deels verhard met betonklinkers en deels met gestorte beton;
•	achter het woonhuis ligt een ondergrondse put voor de opvang van regenwater;
•	vanuit het huis is er uitzicht over landerijen en aangelegde vijver in de achtertuin.
 
LANDBOUWGROND / WEILAND:
Huiskavel met een opp. van ca 01.00.00 ha, na aftrek van het bestemming ‘Wonen’ ca 3.000 m², resteert er een opp. van ca 00.70.00 ha, welke is toe te rekenen aan de huiskavel; weiland voor het huis (ca. 0.70.00 ha), goed te gebruiken als paardenweide/hobbyweide:
  
ALGEMEEN:
Het object op een perc.opp. van ca 01.00.00 ha wordt verkocht in de staat zoals die is ten tijde van de bezichtiging, een en ander in nader overleg met verkoper. Ook de datum van het notarieel transport en de oplevering vindt plaats in nader overleg tussen verkoper en koper. 
Oplevering is op zeer korte termijn mogelijk! Het woonhuis en de schuren worden leeg en ontruimd opgeleverd zoals gezien tijdens de bezichtiging. 
De stapel stenen bij de schuur zal niet worden opgeruimd door verkoper. 
De achter het woonhuis gelegen landbouwgrond is inmiddels verkocht. 
Het woonhuis heeft Energielabel: F. 
Het object is als “wonen” bestemd. 
Qua bodem verklaart verkoper enkel agrarisch te hebben gebruikt en niet bekend te zijn met verontreiniging. 
Aan de plattegronden kunnen geen rechten worden ontleend.

BEZICHTIGING: 
Mocht u nog vragen hebben of wilt u het object bezichtigen, dan kunt u rechtstreeks contact opnemen met de heer Mr. A.A.H.M. (Arjan) van Heerebeek, te bereiken onder mobiele nummer 06 – 21 21 24 31 of via Arvalis, afdeling Vastgoed via 073 - 217 35 80. De heer Van Heerebeek zal u rondleiden tijdens kantooruren. Uiteraard kunt u voor het maken van een afspraak en al uw overige vragen ook e-mailen.

AANVAARDING: 
In overleg; oplevering is op zeer korte termijn mogelijk!

VRAAGPRIJS: 
De vraagprijs bedraagt: € 650.000,= kosten koper.  
De vraagprijs is kosten koper, dat wil zeggen dat de kosten van de overdracht voor rekening van koper komen. De kosten zijn: overdrachtsbelasting, notaris en kadaster. 
Verkoper stelt uitdrukkelijk dat een verkoop niet eerder tot stand komt dan nadat niet alleen over de hoofdzaken (prijs, object), maar ook over de details (oplevering, roerende zaken e.d.) overeenstemming is bereikt. Wij attenderen u erop dat het bieden van de vraagprijs niet automatisch inhoudt dat een koopovereenkomst tot stand komt.

Kenmerken