Beschrijving

In het buitengebied gelegen agrarische locatie, bestaande uit een woning, diverse bedrijfsgebouwen, ondergrond, erf, tuin en verdere aanhorigheden op een perceel ter grootte van 8.700 m².

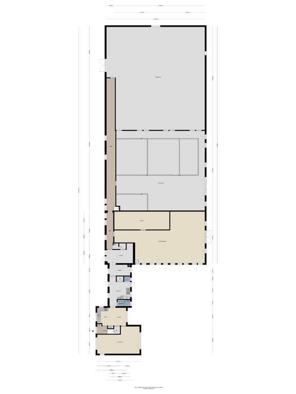
Indeling

ALGEMEEN
Het object is gelegen in Haarsteeg aan de Omloop 10.
De onroerende zaak omvat een agrarisch bedrijf, bestaande uit een woonhuis, diverse bedrijfsgebouwen, ondergrond, erf, tuin, en verdere aanhorigheden op een perceel ter grootte van 00.87.00 ha. De locatie is momenteel in gebruik voor het houden van schapen.

Aan de landelijke rand van Haarsteeg ligt De Omloop 10. Een plek waar rust en natuur samenkomen met verrassend veel voorzieningen binnen handbereik. Deze locatie biedt het beste van twee werelden — een groene, ontspannen leefomgeving én alle dagelijkse gemakken dichtbij.
Voor je dagelijkse voorzieningen hoef je niet ver, op ca. 5 km afstand ligt het nabijgelegen dorp Vlijmen. Voor uitgebreide voorzieningen kun je uitwijken naar ’s-Hertogenbosch, het centrum ligt namelijk op ca. 11 km afstand.

BESTEMMING
Het object is gelegen in het bestemmingsplan “Heusden Buitengebied, 4de herzieningen”, van de gemeente Heusden, vastgesteld door de raad van deze gemeente op 2018-12-18, in werking getreden en onherroepelijk geworden.
Het huidige gebruik is wel toegestaan conform dit bestemmingsplan.
Krachtens dit bestemmingsplan is de onroerende zaak bestemd als:
Enkelbestemming: Agrarisch
Bouwvlak: Ca. 8200 m²
Functieaanduiding: Intensieve veehouderij
Gebiedsaanduiding: Overige zone – groenblauwe mantel
Gebiedsaanduiding: Overige zone – openheid

Het object is gelegen in het wijzigingsplan “De Omloop 10”, van de gemeente Heusden, het betreft een ontwerp wijzigingsplan van deze gemeente van 2023-02-01.
Krachtens dit wijzigingsplan is de onroerende zaak bestemd als:
Enkelbestemming: Agrarisch
Bouwvlak: Ca. 2900 m²
Functieaanduiding: Groen
Functieaanduiding: Specifieke vorm van agrarisch – veehouderij
Gebiedsaanduiding: Overige zone – groenblauwe mantel
Gebiedsaanduiding: Overige zone – openheid
Het wijzigingsplan kan, indien gewenst, middels het aanleveren van de dataset aan de gemeente onherroepelijk vastgesteld worden. Het huidige vastgestelde bestemmingsplan (2018-12-18) is leidend.

MILIEUVERGUNNING
De navolgende milieuvergunning aanwezig:
niet benut gehouden dieren de laatste drie jaar (volgens bron eigenaar / opdrachtgever).
de locatie is op dit moment in gebruik als schapenhouderijbedrijf.
het object is gemeld in het kader van het activiteitenbesluit.
de inrichting is niet aanwezig.
NB wet vergunning niet aanwezig.
op 23 juni 2021 is een milieuvergunning verleend voor de navolgende aantallen dieren:
- 800 voedsters 
- 1543 vlees- en opfokkonijnen tot dekleeftijd

OMSCHRIJVING
WOONHUIS
• bouwjaar 1968 en gerenoveerd in 2007.
• de inhoud bedraagt 539 m³.
• energielabel C.
• opgetrokken in 2021 na-geïsoleerde spouwmuren van baksteen.
• kapconstructie bestaande uit spanten van hout.
• zadeldak beschoten met in 2021 geïsoleerde dakplaten en gedekt met gebakken pannen.
• kozijnen van hardhout, op de begane grond voorzien van isolerende beglazing op de eerste en tweede verdieping vurenhout kozijnen voorzien van enkele beglazing.
• centrale verwarming op propaangas (HR ketel, 2000) in alle woon- en verblijfsruimten.
• begane grondvloer van beton, behalve de woonkamer (houten vloer met kruipruimte), verdiepingsvloer van beton en zoldervloer van hout.
• middels een tussenbouw is het woonhuis verbonden met het hoofdgebouw dat in gebruik is als boerderijwinkel/opslag/schapenstal. De tussenbouw is voorzien van twee HR ketels (1999) ten behoeve van de bedrijfsgebouwen.
• de woning is voorzien van 17 st. zonnepanelen, bj. 2021 met 355 Wp p/st, toaal 6035 Wp.
Indeling begane grond:
• hal met vloerbedekking, houten trap naar verdiepingsvloer en meterkast, toegang tot keuken, woonkamer, kelderkast onder de trap en meterkast;
• woonkamer is uitgebouwd en afgewerkt met stucwerk en een eiken houtenvloer. De dakbedekking van de uitbouw is in het jaar 2000 vervangen en in 2025 nog gedeeltelijk vernieuwd;
• keuken (2007) met laminaatvloer, voorzien van een keukenmeubel (MDF + granieten blad), 5-pits gasfornuis, oven (2024), boiler (12,5 l 2021) en wasbak, biedt toegang tot bijkeuken;
• bijkeuken met tegelvloer, wastafel, toilet, werkkast, badkamer, witgoedaansluiting en vaatwasser, biedt toegang tot berging.
Indeling eerste verdieping:
• overloop met vloerbedekking en apart toilet met wastafel;
• slaapkamer 1 wanden afgewerkt met stucwerk en voorzien van vloerbedekking;
• slaapkamer 2 wanden afgewerkt met stucwerk en voorzien van vloerbedekking;
• slaapkamer 3 wanden afgewerkt met stucwerk en voorzien van vloerbedekking;
• slaapkamer 4 wanden afgewerkt met stucwerk en voorzien van vloerbedekking.
Indeling zolder:
• bereikbaar middels een vlizotrap;
• grote open zolder met twee dakramen.

SCHAPENSTAL/BOERDERIJWINKEL
• bouwjaar deels 1968 en deels 1975.
• afmetingen ca. 46.50 m x 19.50 m = ca. 907 m², goothoogtes ca. 2.50 m (voorzijde) en 3.70 m (achterzijde), nokhoogte ca. 7.30 m.
• niet geïsoleerde spouwmuren welke zijn opgetrokken uit bakstenen.
• het dak is gedekt met asbesthoudende golfplaten op gordingen van hout en geïsoleerd met PUR liggend op gelamineerde houten spanten met geheel vrije overspanning.
• de ruimte is voorzien van een betonvloer, de voormalige mestputten zijn afgevuld met zand en dichtgestort met bewapeningsbeton.
• verdiepingsvloer van beton met afmetingen ca. 21.50 m x 10.20 m.
• enkel loopdeuren + schuifdeur in ca. 2021 geplaatst.
• de boerderijwinkel is voorzien van verwarming om de ruimte vorstvrij te houden en een gevlinderde betonvloer uit 2021.
• boven de boerderijwinkel bevindt zicht een ruimte welke eventueel omgebouwd kan worden naar gastenverblijf.
• de schapenstal is voorzien van VENO stalinrichting en is flexibel in te richten voor een capaciteit van ca. 300 schapen.
• tevens is er stalinrichting aanwezig voor ca. 3 pony’s

WERKTUIGENBERGING
• bouwjaar 1981.
• afmetingen werktuigenberging ca. 13 m x 16 m = ca. 208 m², goothoogte ca. 4 m, nokhoogte ca. 6.75 m.
• de wanden zijn opgetrokken uit stalen damwandplaten van ca. 4 meter hoog.
• het dak is gedekt met asbesthoudende golfplaten (1981) op gordingen van houten liggend op vrij dragende stalen spanten.
• deels betonvloer en deels zand.
• geïsoleerde damwandprofielplaten schuifdeur van ca. 4 m x 4 m.
• de werktuigenberging is voorzien van een ingebouwde werkplaats.
•  tegen de werktuigenberging zijn in 1999 opslaghokken opgetrokken in damwandplaten.

MESTOPSLAG
• bouwjaar 2007.
•  afmetingen mestopslag ca. 13 m x 12 m = ca. 156 m².
• de mestopslag is tegen de werktuigenberging aangebouwd en rondom open. Aan de zijkanten zijn de wanden opgetrokken uit ca. 1.50 meter betonwanden.
• het dak is gedekt asbestvrije golfplaten (2007) op houten gordingen liggend op stalen spanten.
• de ruimte is voorzien van een betonvloer.
• de ruimte is op dit moment in gebruik als mestopslag.

DIVERSEN
• Boomgaard, schapenweide en vijver.
• het gedeelte naar de bedrijfsgebouwen is afgesloten middels een toegangspoort van ca. 6 m breed en ca. 1.60 m hoog.
• tegen de schapenstal is een carport (2018) gebouwd van ca. 6 m x 6 m met ruimte voor twee auto’s. De carport heeft een damwand platen dak op houten balken welke rusten op stalen staanders. De carport is afgewerkt met boeiboorden.
• Kippenhok met volière

ERFVERHARDING
Circa 1.050 m2 verharding van gestorte beton met deels asfalt op de beton, klinkers en gebroken puin.

BEZICHTIGING
Mocht u nog vragen hebben of wilt u het object bezichtigen, bel rechtstreeks met Anne van Oorschot, te bereiken onder mobiele nummer 06 – 29 17 94 27 of via Arvalis 073 - 217 35 80. De makelaar zal u rondleiden. 

INFORMATIE 
Aangaande De Omloop 10 is recent een verkennend bodemonderzoek uitgevoerd. Op basis van de resultaten blijkt dat er geen aanvullend of nader onderzoek noodzakelijk word geacht. Het bodemonderzoek is op te vragen bij de makelaar.

Algemeen:
Alle verstrekte informatie moet uitsluitend gezien worden als een uitnodiging tot nader overleg, c.q. tot het doen van een financieel voorstel. Verkoper stelt uitdrukkelijk dat een verkoop niet eerder tot stand komt dan nadat niet alleen over de hoofdzaken (prijs, object), maar ook over de details (oplevering, roerende zaken e.d.) overeenstemming is bereikt. Wij attenderen u erop dat het bieden van de vraagprijs niet automatisch inhoudt dat een koopovereenkomst tot stand komt.

VRAAGPRIJS
De vraagprijs bedraagt: € 735.000,= k.k.

INFORMATIEPLICHT
De in deze verkoopinformatie vermelde gegevens zijn zo zorgvuldig mogelijk samengesteld. Worden toch onjuistheden geconstateerd, dan kunnen daar geen rechten of aanspraken aan worden ontleend.

Kenmerken