Beschrijving
TE KOOP BIJ INSCHRIJVING: perceel landbouwgrond, ter grootte van 02.34.50 HA.
Inschrijven is mogelijk t/m dinsdag 9 december 2025 tot 12.00 uur
Indeling
ALGEMEEN:
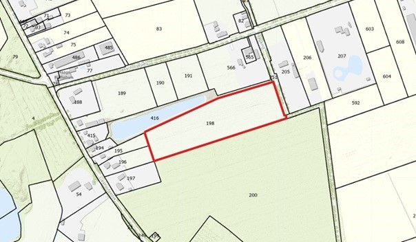
Het perceel is gelegen te SINT-OEDENRODE aan de Haageind.
Het betreft een mooi perceel landbouwgrond, ter grootte van 02.34.50 hectaren.
Het betreft een rechthoekig perceel en is thans in gebruik als bouwland / suikerbieten.
KADASTRALE GEGEVENS:
Gemeente SINT-OEDENRODE, sectie K, nummer 198, ter grootte van 02.34.50 HA.
Aantekening kadaster: Voor zover bekend geen bijzonderheden.
(Bron: Dienst voor het kadaster en de Openbare Registers).
BESTEMMING:
Het perceel is gelegen in het bestemmingsplan “Buitengebied Sint-Oedenrode” van de gemeente Sint-Oedenrode. Deels onherroepelijk in werking (vastgesteld 15 maart 2012). Krachtens het bestemmingsplan is het perceel bestemd als:
Bestemmingsvlakken:
Waterstaat – Attentiegebied EHS
Agrarisch met waarden – Landschapswaarden.
Gebiedsaanduidingen:
Reconstructiewetzone – extensiveringsgebied.
(Bron: Omgevingsloket).
LANDBOUWGROND:
Perceel landbouwgrond met een totale perceeloppervlakte van 02.34.50 hectaren.
Het is zandgrond met een humushoudende deklaag met een teeltaarde van circa 45-50 cm.
Het perceel is ontsloten aan een openbare onverharde weg “Haageind” en via de “Jekschotseweg”.
Het perceel is thans in gebruik als bouwland (suikerbieten).
Geen beregeningsput aanwezig.
Het perceel is niet gedraineerd.
In 2024 grasland gehad als rustgewas.
Verkopers hebben met de buurman afgesproken de tussen sloot om en om te vegen, dit jaar doet dit de verkoper in de herfst/winter.
Het perceel wordt geleverd vrij van huur, pacht en/of enig ander gebruiksrecht.
Het perceel wordt leeg en ontruimd afgeleverd en zal ter beschikking zijn van de koper uiterlijk datum notariële eigendomsoverdracht.
Alle baten en lasten komen voor rekening van koper met ingang van: datum notariële eigendomsoverdracht.
Er rust wel jachtrecht op het verkochte voor Opheij te Sint Oedenrode.
Verkoper is niet bekend met bodemverontreiniging.
BODEMTYPE:
Volgens de Bodemkaart (GIS) bestaat de bodem uit:
Bodemsoort:
- Veldpodzolgronden; leemarm en zwak lemig fijn zand (Hn21)
Bodemcode: Hn21
Veldpodzolgronden: leemarm en zwak lemig fijn zand
Hoofdgroep: Humuspodzolgronden
Subgroep: Hn Veldpodzolgronden
Textuurcode: 21
GEWAS:
Verbouwde gewassen:
- 2025: Bieten
- 2024: Grasland
- 2023: Maïs
- 2022: Aardappelen
- 2021: Maïs
- 2020: Grasland
- 2019: Grasland
- 2018: Grasland
- 2017: Grasland
- 2016: Maïs
- 2015: Maïs
- 2014: Maïs
- 2013: Maïs
- 2012: Maïs
- 2011: Maïs
- 2010: Maïs
(Bron: Boer & Bunder).
LEVERING:
De akte van levering dient voor rekening van koper te worden gepasseerd uiterlijk donderdag 15 januari 2026 bij Gerrits & Van Gulick Notarissen, gevestigd te Gemert en kantoorhoudende aldaar aan de Komweg 150 (5421 LH); telefoon +31 (0)85 0760 760.
De feitelijke levering (aflevering) van het verkochte vindt plaats tegelijk met het passeren van de akte van levering, geheel leeg en ontruimd, vrij van huur en/of pacht.
Koper heeft een eigen onderzoekplicht ter zake van alle onderwerpen die voor hem van belang kunnen zijn. Dat geldt zeker voor bestemmingen, bestemmingsplannen / omgevingswet, verordeningen, e.d.
VERKOOP BIJ INSCHRIJVING:
Verkoop geschiedt door middel van inschrijving. Inschrijving vindt uitsluitend plaats door het tijdig indienen van een geldig ingevuld en ondertekend inschrijfformulier. Onvolledige en niet ondertekende inschrijfformulieren zijn ongeldig.
Inschrijven is mogelijk tot en met dinsdag 9 december 2025 tot 12.00 uur. Het inschrijfformulier dient dan in een gesloten enveloppe samen met een kopie van een geldig legitimatiebewijs en een verklaring van een erkende bankinstelling waaruit blijkt dat de bieder financieel in staat is de koopprijs met de kosten en belastingen te betalen, op het kantoor van de notaris aanwezig te zijn, zijnde: Gerrits & Van Gulick Notarissen, gevestigd te Gemert en kantoorhoudende aldaar aan de Komweg 150 (5421 LH), telefoon +31 (0)85 0760 760, middels een gesloten enveloppe met vermelding “Inschrijving SINT-OEDENRODE, Haageind”.
De notaris opent slechts de enveloppen en noteert alle bieders, maar heeft verder geen bemoeienis met en aanvaardt geen aansprakelijkheid voor deze inschrijving.
OMSCHRIJVING VAN DE KOOP:
KOOP: Perceel landbouwgrond, ter grootte van 02.34.50 hectaren, gelegen te SINT-OEDENRODE aan de Haageind. Kadastraal bekend: Gemeente SINT-OEDENRODE, sectie K, nummer 198, ter grootte van 02.34.50 ha
AANTAL VOORWAARDEN (zie verder onze uitgebreide verkoopbrochure):
- De akte van eigendomsoverdracht zal gepasseerd worden bij Gerrits & Van Gulick Notarissen, gevestigd te Gemert en kantoorhoudende aldaar aan de Komweg 150 (5421 LH) / telefoon +31 (0)85 0760 760, uiterlijk donderdag 15 januari 2026 of zoveel eerder of later dan partijen nader overeenkomen.
Het object wordt leeg en ontruimd afgeleverd en zal er beschikking zijn van de koper uiterlijk op datum notariële eigendomsoverdracht.
- Inschrijven dient te geschieden door volledige invulling en ondertekening van het inschrijfformulier, in volle nominale bedragen, in euro’s uitgedrukt en niet mede in goederen e.d.
- Iedere inschrijver moet zijn bod gestand doen tot aan het einde van de termijn van beraad, zijnde donderdag 11 december 2025 tot 17.00 uur.
- Verkoper behoudt zich het recht voor om zonder opgaaf van reden niet te gunnen of te gunnen aan een ander dan degene die het hoogste bod heeft gedaan.
- Indien de verkoper tot gunning overgaat zal de makelaar de inschrijver / koper uiterlijk voor donderdag 11 december 2025 voor 17.00 uur hiervan telefonisch op de hoogte brengen.
- De inschrijving is onvoorwaardelijk en met financiële garantie.
- Bij overdracht van de gronden kan verkrijger een beroep doen op de vrijstelling van overdrachtsbelasting als bedoeld in artikel 15 lid 1 sub q van de Wet op Belastingen van Rechtsverkeer, indien bij de levering aan de voorwaarden voor die vrijstelling wordt voldaan. Daarbij geldt dat de cultuurgrond minimaal 10 jaar lang bedrijfsmatig agrarisch moet worden gebruikt. Verkrijger is ermee bekend dat deze vrijstelling van overdrachtsbelasting zal vervallen en zal leiden tot belastingheffing als koper of zijn rechtsopvolger het gekochte niet gedurende een termijn van tenminste 10 jaren op een wijze als bedoeld in deze vrijstelling exploiteert of doet exploiteren. Deze vrijstelling is daarom een voorwaardelijke vrijstelling.
- De koopprijs is kosten koper, dat wil zeggen dat de kosten van de overdracht van de eigendom voor rekening van koper komen.
- Onder- of overmaat is niet van toepassing.
- Op het verkochte rust wel jachtrecht.
BEZICHTIGING / VRAGEN:
U kunt het perceel op eigen gelegenheid bezichtigen.
Voor vragen of u wenst onze uitgebreide verkoopbrochure met inschrijfformulier te ontvangen, dan kunt u contact opnemen met Arvalis, telefoon 073 – 217 35 80 of u kunt rechtstreeks bellen met de heer Ing. J.M.J.M. (Jos) van den Heuvel, te bereiken onder mobiele nummer: 06 – 53 39 76 30.
INFORMATIE:
Algemeen:
Alle verstrekte informatie moet uitsluitend gezien worden als een uitnodiging tot het doen van een financieel voorstel.
Onderzoekplicht:
Koper heeft een eigen onderzoekplicht ter zaken alle onderwerpen die voor hem van belang (kunnen) zijn. Dat geldt zeker voor bestemmingen, bestemmingsplannen, bouwverordeningen e.d.
De in deze verkoopinformatie vermelde gegevens zijn zo zorgvuldig mogelijk samengesteld. Worden toch onjuistheden geconstateerd, dan kunnen daar geen rechten of aanspraken aan worden ontleend.